设为首页 加入收藏 联系我们

中山市三乡医院儿童保健门诊装修工程采购项目调研公告

    来源:中山市三乡医院    点击数:5159    发布时间:2023/2/10 19:23:00    

       中山市三乡医院拟对儿童保健门诊装修工程采购项目进行市场调研,欢迎符合资格条件的供应商提交资料报名。项目概况如下:

一、项目名称:儿童保健门诊装修工程采购项目

    项目编号:20220130F

预算金额:¥122136.91元

二、项目内容:

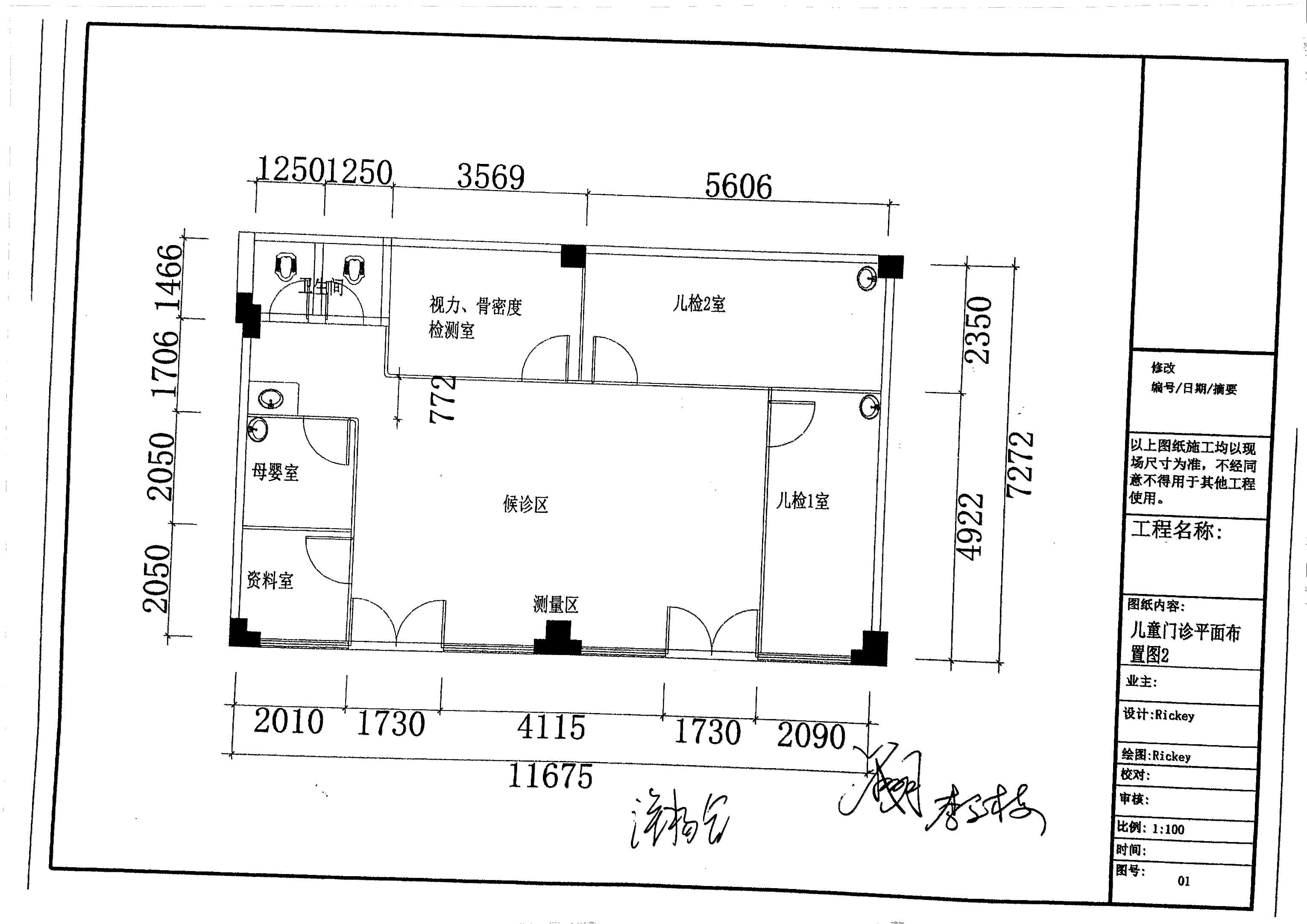
因原体检中心儿童保健门诊拟设置在三乡镇平南村乡爵悦府一期7栋3-4卡商铺,现需对设置的儿童保健门诊进行装修。详细资料见附件1、2。如需要查看现场请联系总务科。

三、报名资料要求:

    (一)供应商资格:

1.供应商必须是具有独立承担民事责任能力的在中华人民共和国境内注册的企业法人或其他组织;

2.供应商须具有有效的且具备相关经营范围的营业执照;

3.供应商应具有项目的承接能力、合同的履约能力、售后服务能力和良好的信誉;

4.供应商在参与采购活动中未有违法违纪行为并受过处罚;

5.本项目拟在广东政府采购智慧云平台下单采购,供应商需提供广东政府采购智慧云平台资质证明。

   (二)资料提交:

    1、纸质资料详见附件3。

    2、资料电子版整合成1个PDF文件,命名方式为:供应商名称+项目名称。以上文件保存在移动存储设备(U盘,需标识供应商简称),资料电子版需单独封装。   

四、相关事项

    1、递交资料时间:2023年2月10日至2023年2月20日(工作日8:00-12:00,14:30-17:00)。

    2、递交资料地点:中山市三乡镇康乐路10号三乡医院前陇楼二楼。

    3、纸质版资料及电子版资料(U盘)允许通过邮递方式或现场递交,现场递交文件人员需符合中山市疫情防控相关要求。

4、公布网站(资料下载):中山市三乡医院官网www.zssxyy.com

5、联系人:

招标办:杜工 0760-23809975

总务科:涂工 0760-23809934

备注:不按规定时间或不按要求递交资料的,不予受理,严禁提交虚假资料。

附件1:平面布置图.jpg

附件2:合同条款要求.doc

附件3:中山市三乡医院院内调研文件格式.doc

     

                            中山市三乡医院    

                          2022年2月10日